|
![]() Traditional and Computer Aided Design and Graphics Los Angeles, California, USA, Terra, Solar System Sol, Milky Way Galaxy, Local Group, Virgo Super Cluster, Local Universe |
|
|
Computer aided and/or traditional drafting. No job too small. While I began using AutoCAD© for computer drafting in 1991, I learned traditional pencil drafting many years ago. Today, I use primarily AutoCAD and it's been many yuears since I drafted by hand. Because pencil drawings on large pieces of paper are not as flexible and clean as digital computer data, these pencil drawings don't look as good as digital data. Note: These drawings are presented here for portfolio purposes only. These drawings are not available for sale or to be given away in hard copy or digitally in any scale. I will be happy to show hard-copy during a legitimate job interview. |
![]() I designed (in AutoCAD) and built this drafting table after I was a IAD expert because I still like traditional drafting. I need a dfafting table in my office to remain grounded to my roots. |
![]() Pending. |
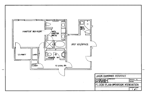
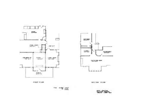
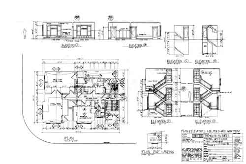
![]() Another drafting for Interior Designer Nancy Lerner. Pencil, 2000 ![]() House Beautiful/Art Directors Guild ; Hollywood Bungalow Project. A still photo spread in House Beautiful magazine and tour at Pacific Design Center, July 13 to August 31, 2000. ![]() Corporate displays for conventions. Designs by West Coast Displays, Oxnard California. Pencil. ![]() Kris' Apartment. An apartment typical of early 20th Century San Francisco. ![]() Batman and Robin Undercarriage, miniature Batmobile. Pencil. 1997 |

|
|
|
|
|