|
![]() Traditional and Computer Aided Design and Graphics Los Angeles, California, USA, Terra, Solar System Sol, Milky Way Galaxy, Local Group, Virgo Super Cluster, Local Universe |
|
|
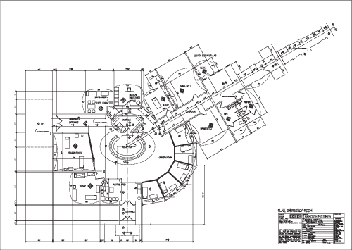
Two stages of hospital sets and one stage of residence of characters. AutoCAD © R14, 1998 Note: These drawings are presented here for portfolio purposes only. These drawings are not available for sale or to be given away in hard copy or digitally in any scale. I will be happy to show hard-copy during a legitimate job interview for Set Designer. The stage containing some of the hospital sets. The stage containing the Emergency Room and the remaining small hospital sets. |
Spotting plan. Hospital Emergency Room set, plan. 1998 ![]() Elevations. ![]() Elevations. ![]() Elevations. ![]() Elevations. ![]() Elevations. |
![]() Study model. |

|
|
|
|
|