|
![]() Traditional and Computer Aided Design and Graphics Los Angeles, California, USA, Terra, Solar System Sol, Milky Way Galaxy, Local Group, Virgo Super Cluster, Local Universe |
|
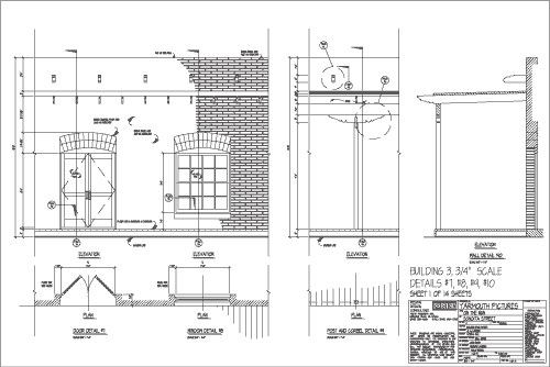
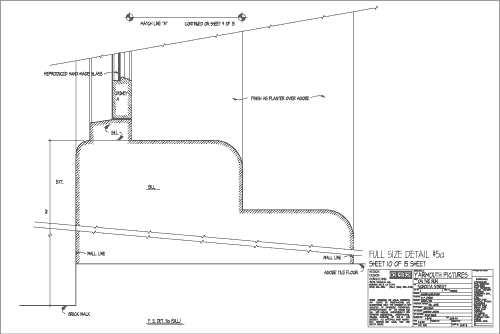
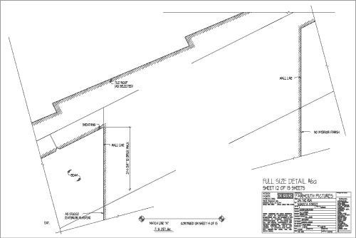
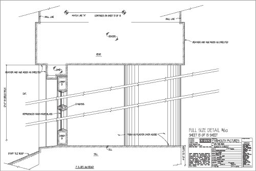
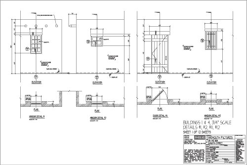
Art Direction/Set Design/Computer Drafting and Rendering - Mexican Village, On the RunDrawn in AutoCAD ©. You don't need a big budget sci-fi movie to justify CAD. Even a dusty 19th century Mexican village can be drawn faster in CAD. A street in Northern Mexico about 1880. It consists of a small building, a large hotel, a shop, and a jail. 1996Note:These drawings and images are presented here for portfolio purposes only. These drawings and images are not available for sale or to be given away in hard copy or digitally in any scale. I will be happy to show hard-copy during a legitimate job interview for Set Designer. |
![]() Rendered in AutoCAD © R12. Materials created in Photoshop 5. |
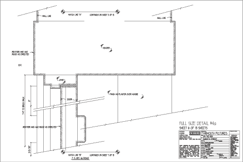
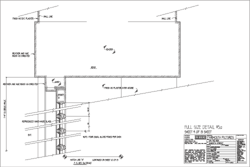
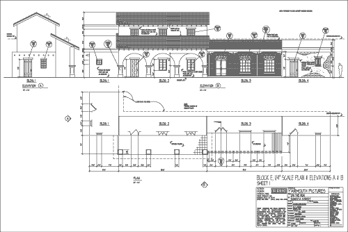
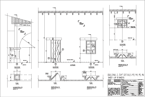
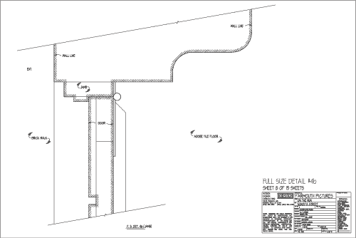
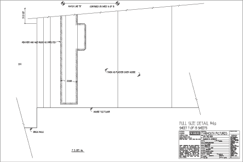
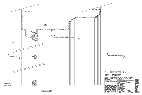
![]() Rendered in AutoCAD © R12. Materials created in Photoshop 5. ![]() On the Run Plan and elevation of Mexican village set. AutoCAD ©. ![]() 3/4" Detail of building #2. ![]() Full size roof detail. ![]() Full size detail of column. ![]() Full size detail of column. ![]() Full size roof detail. ![]() Full size door detail. ![]() Full size door detail. ![]() Full size window detail. ![]() Full size window detail. ![]() Full size window detail. ![]() Full size window detail. ![]() Full size roof and header detail. ![]() Full size window detail. ![]() Full size window detail. ![]() Full size detail of door hardware. ![]() 3/4" Detail of building #3. ![]() Full size detail ![]() 3/4" Detail of building #1 & 4. ![]() Full size detail. |

|
|
|
|
|