|
![]() Traditional and Computer Aided Design and Graphics Los Angeles, California, USA, Terra, Solar System Sol, Milky Way Galaxy, Local Group, Virgo Super Cluster, Local Universe |
|
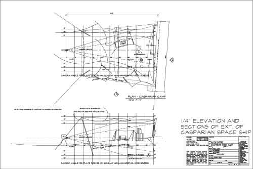
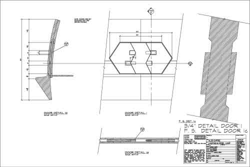
| I acted as Production Design and Set Design, designing sets, space craft and props. The Asia financial crisis caused this low budget production to loose financing and production never began. Most of these drawings are AutoCAD © R12. Director: Tom Atchitson, 1997. |
| Note: These drawings are presented here for portfolio purposes only. These drawings are not available for sale or to be given away in hard copy or digitally in any scale. I will be happy to show hard-copy during a legitimate job interview for Set Designer. |







|
|
|
|
Copyright © 2000 - 2023, Kenneth A. Larson. All Rights Reserved. Website content including photographic and graphic images may not be redistributed for use on another website. |
|
|
|