Home Theater Ken Larson Set Designer
Traditional and Computer Aided Design and Graphics
Los Angeles, California, USA, Terra, Solar System Sol, Milky Way Galaxy, Local Group, Virgo Super Cluster, Local Universe
Hotel Room

Why you should want a Computer Specialist
Set Designer in your Art Department

The simple answer is that while the Computer Specialist Set Designer rate is higher than the Senior rate, a Computer Specialist can work more efficiently and thereby, save you money. Depending on the project, time savings can be considerable.

I've heard it said that people think computer drawings are final and locked in. Actually, the truth is that pencil draftings, marker renderings, and cardboard models are locked in. It is much easier to edit a computer drawing, model, or rendering or generate any number of alternative ideas.

Most Art Departments have gone digital for graphics, budgeting, Internet. Leaving out CAD is like driving a 2001 car with a 1980 engine. Digitizing the drawings will bring the full power of the computer into play.

When should you use a Computer Specialist Set Designer?

The short answer is any time you think you might make a change, draw something more than once, draw something symmetrical, make signs and graphics, transmit electronically, use automated manufacturing, or doing previsualization or walk-throughs. In other words, almost any time.

How to make efficient use of a Computer Specialist Set Designer


The most efficient use of a computer specialist is to involve him/her in the entire process, beginning to end, using the computer for all the steps of the design process. Some examples:

A recent project, I used the computer exclusively: design, computer models, computer renderings, working drawings, even walk-throughs. I saved many hours of work.

Another project was done entirely by hand. I drew some sets over and over on different sheets, different scales, with many changes. I could have done this in half the time had it been entirely on the computer.

The project before, the Art Director surveyed the locations and drafted them by hand. Then had me redraw them on the computer, using his hand draftings as my data. Not only did this involve drawing each of the locations twice, but lost the accuracy of the computer by using less accurate hand draftings as data - "GIGO" (garbage in - garbage out). Had I done the survey and drawn each location once on the computer, It would have saved time and been more accurate.

I recently interviewed for a job to make a computer model. Drawings and a cardboard model were already started. I asked what they wanted from the computer model that they couldn't get from the cardboard model and the Art Director wasn't sure. Had I done the drawings on the computer and extrapolated these into a computer model, significant time savings would have resulted. As it was, I would have simply been duplicating work already done and saved little.

Imagine this example formula:

Draw once by hand (10 hours) + redraw/trace with changes (8 hours) + redraw/trace with changes (8 hours) = 26 hours.

Draw once by hand (10 hours) + redraw on the computer (12 hours) + make changes (1 hour) + make changes (1 hour) = 24 hours; save little.

Draw once on the computer (12 hours) + make changes (1 hour) + make changes (1 hour) = 14 hours; save almost half.

How you can benefit by employing a Computer Specialist Set Designer

Reuse data.

Changes are faster.

Computer models are more versatile.

Make signs and graphics.

Previsualization.

Computer controlled manufacturing.

More accurate.

Cleaner.

Backups and archiving.

Digital data can be transmitted electronically or faxed.

Why Not to Hire a Computer Specialist.

Reuse data.

Digital data can be reused in a number of different ways.

Plan & Elevation
Plan and elevation of Mexican village set. Once the 1/4" scale plan and elevation were finished, the details were also almost finished. Any of the data here can now be reused for other drawings, the computer model, to illustrate text reports, and even graphics for web pages. Because it is digital data, there is little or no loss when changing scale or converting. A CAD program such as AutoCAD © is as accurate as the user's input, in my case, very accurate. AutoCAD ©.

3/4 Inch Detail
This 3/4" Detail is simply a copy of the 1/4" scale drawing, plotted in a different scale. All that was needed was to add the text and dimensions which differed from the
1/4" scale drawings.
Full Size Door Detail
Some of the geometry for this detail came from the 3/4" scale drawing, saving the need to redraw that data.
Model Laser Cutting
Had it been needed to build a matching visual effects model, the same drawing, with new notes and dimensions, could have been used to make an exact miniature copy (left). Had it then been requested to match the latch for the model (right), the computer could have aided in the manufacturing. With a little extra effort, the same geometry could have been reworked to supply the data used for computer controlled manufacturing. Not only laser cutting, but many sign shops can router parts from a computer controlled router. Acid etched brass model parts can be made from the same digital data. Growing in popularity is rapid prototyping such as stereo lithagraphy. These are all ways to take the existing digital data and make perfect parts, exactly matching the full size set or the drawings.

The same plan and elevations can then be used to make a rendering. This rendering was made in AutoCAD © R12. Materials were created in Photoshop 5.


I find CAD to be an excellent tool for laying out parts for Art Department study models. Since the notes and dimensions are on separate layers, by turning off these layers, the layouts for the model are free of these unwanted annotations. The layouts are very accurate and since they are generated from the same data, match the construction drawings exactly. AutoCAD © R12.

There are many advantages to using the computer in Visual Effects to preprogram the motion control, build the right amount of a model, to give a head start to CGI models. We used this method on Batman and Robin and Shrek.
Changes are faster.
Changes
Changes are a snap

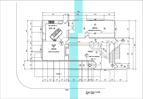
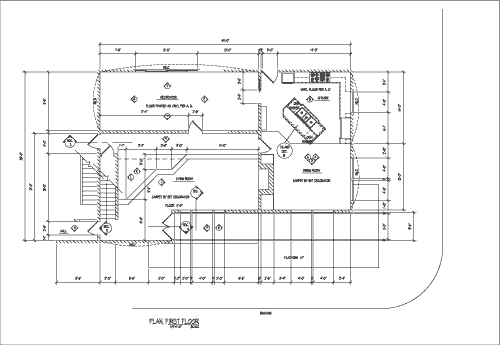
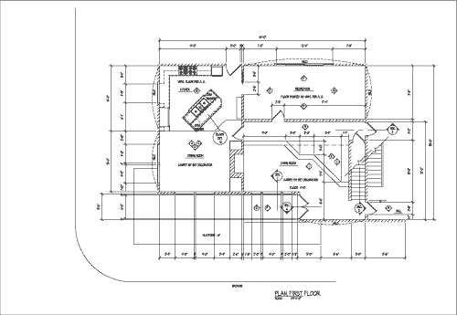
Changes are fast and easy. Simple changes are quick, big changes are much faster. Try making a room in the middle of the house 2 feet longer using an electrical eraser and pencil. With my computer, I can usually make such a change in about 15 seconds. You suddenly decide to flop the entire set. Even erasing the notes and dimensions, turning the vellum over, and relettering would take a few minutes, I can do it in about five seconds. Rotating a set 5 degrees would take the computer a few seconds as opposed to erasing and redrawing with pencil. Even if you were to cut and tape a drawing in a new configuration, it will take longer than with the computer and would not look as neat.
Original
The cyan shaded area is where I stretched the center of this house 5 feet in less than one minute.
Stretched
Flopping this house, including the lettering, took about 5 seconds.
Flopped
Computer models are more versatile.

In additions to the fast changes listed above, there are other advantages to computer modeling and rendering. Materials and colors can be changed quickly. I've produced dozens of renderings for some projects exploring different colors, materials, and lighting schemes. Viewing angles and composition can be changed and rerendered in minutes, not hours. Try doing a walk-through animation with marker renderings. As a model maker for over eighteen years, I can assure you that a computer model makes much less mess, dust, and toxic fumes
Option 1
Option 2
Option 3
Option 4
It took less than five minutes to render these four variations.

Make signs and graphics.

Have you even needed to design signs, badges, name plates, logos, shields, graphics for prop publications, vehicle
graphics, or any other graphics for a production? Why hire a Set Designer and a Graphics Designer, when you
can hire one person for both jobs?
Sign
This break-away sign was printed on my 36" plotter.
Product
Graphics made in Adobe Photoshop.
ID Badge
Two options for ID badge. Illustrator.

Art Work
I scanned a postage stamp size grayscale photo from my psychology book and retouched it until I had a large framed portrait. Photoshop.


Previsualization.

Make computer models and renderings, using exact camera lenses. Study lighting, color, and camera moves. A computer model can be made for and entire stage including camera and equipment to verify clearance. Visual Effects can preprogram camera moves.

Rendering
Final office.
Set
Life's office set in Heaven.
Computer controlled manufacturing.
Not only laser cutting, but many sign shops can router parts from a computer
controlled router. Acid etched brass model parts can be made from the same digital
data. Growing in popularity is rapid prototyping such as stereo
lithagraphy. These are all ways to take the existing digital data and
make perfect parts, exactly matching the full size set or the drawings.
Laser Cut Parts
Laser Cut Parts
This is laser cutting we used for Lucky Goldstar, a film for a simulator ride.
More accurate.
In addition to 32 decimal points of accuracy, the ability to zoom in or out allows you to work on anything from an atom to the solar system, or both. Both objects are drawn actual size, just toom in or out to reach the correct scale.
Atom
Above is an atom, right is earth's orbit.
Solar System
Cleaner.

Have you ever seen a drawing that has been reworked and changed for months?
It's gray with graphite. You can see where recent changes were made, they are the clean areas. A CAD drawing never gets dirty.
Clean
Above is a computer drawing, below is a pencil drawing.
Dirty
Backups and archiving.
Have you ever had a blue-print machine eat your vellum. You have no choice but to sit down and redraw it. I simply plot another copy in ten minutes. Of course, I do regular back-ups of my computer files and store them off-site.

Two weeks of drawing were in your car when it was stolen, plot another copy. Sorry, I can't do much about the car.

I can store the drawings from an entire show on a CD-ROM or other compact medium. This is in addition to the plots which are stored like any other vellum.
Digital data can be transmitted electronically or faxed.

Have you ever tried to fax or e-mail an E size sheet of vellum? I have printers in a variety of sizes, including 8 1/2 x 11. I can also fax directly from the computer. The newest AutoCAD was designed to interact with the web. Print to a PDF and email it across the world.
Why Not to Hire a Computer Specialist.

I can't think of a reason I've heard that I can't refute. A Production Designer told me that "Carpenters don't like CAD drawings." I was a Prop Builder for 18 years. We loved CAD drawings. They are clean, clear, legible, the dimensions add up, and usually we stood around waiting for them less. Of course an inexperienced CAD operator can make bad drawings, just as an inexperienced pencil draftsperson can make bad drawings.

"CAD drawings are too clean." If you like inconsistent line weights, smudges, and lines that extend at the corners, this can be done in CAD. I don't do these because I like clean accurate drawings.

"CAD drawings take longer than pencil." This is true for some individual drawings, but as a package, on most projects, 100% use of CAD would be considerably faster. An inexperienced CAD operator might take longer, just as an inexperienced pencil draftsman can take longer. But then with pencil, I can work more hours and make more money.

Please e-mail me some more objections, I'll add my rebuttal here.
Note: These drawings are presented here for portfolio purposes only. These drawings are not available for sale or to be given away in hard copy or digitally in any scale. I will be happy to show hard-copy during a legitimate job interview for Set Designer.

Top Back Home
Web Design by Kenneth A. Larson Copyright © 2000 - 2023, Kenneth A. Larson. All Rights Reserved.
Website content including photographic and graphic images may not be redistributed for use on another website.
Please don't pirate videos
This page last updated: Tuesday, 24-Jun-2025 19:57:11 PDT
Valid HTML 5 Transitional Valid CSS!