|
![]() Traditional and Computer Aided Design and Graphics Los Angeles, California, USA, Terra, Solar System Sol, Milky Way Galaxy, Local Group, Virgo Super Cluster, Local Universe |
|
|
I began using AutoCAD© in 1991 using Release 10. I try to remain current using AutoCAD©. Computer Aided Set Designs |
.jpg)













































![]() Borg Encounter a Star Trek attraction for a new Space Theme Park in Germany, drawn in Metric. I used AutoCAD Architectural Desktop 3.3 ©. 2002 |
|
Among drawings I worked on are: Queue Area: Plan. Reflected Ceiling Plan. Sections and Elevations. Sections and Elevations. Sections and Elevations. Details window and view screen. Hand rail details. Hand rail details. Hand rail details. Panel detail. Scanner detail. Scanner detail. Scanner detail. Wall panel detail. Door details. Door details. Door details. Door details. Reflected ceiling plan of Transition Area. |
Communication Room: Floor plan of Communication Room Reflected ceiling plan of Communication Room Section and elevation of Communication Room Elevation of Communication Room Elevation and Sections of Communication Room Sections of Communication Room Console detail for Communication Room Console detail for Communication Room Railing detail for Communication Room Panel detail for Communication Room Light box detail for Communication Room Door detail for Communication Room Floor Finish Plan of Communication Room. Panel Detail. |

| Note: These drawings are presented here for portfolio purposes only. These drawings are not available for sale or to be given away in hard copy or digitally in any scale. I will be happy to show hard-copy during a legitimate job interview. |
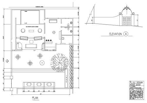
![]() Trade Show Display - Hair Products Company. Elevation A showing displays, hardwall, and shelves. AutoCAD 3.3 ©. 2003 |
| |
| A simple computer drafting project (above) redrawing from an old copy for display with the actual object (left). AutoCAD © 2003. |
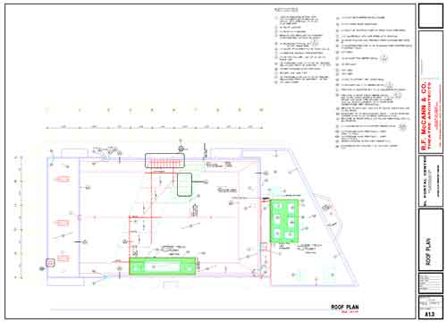
A small patio cover that became involved because it was part of a condominium. Wedding Reception, AutoCAD Architectural Desktop © R3.3. 2002 ![]() Set Designers 50th Anniversary Party, Autry Museum, Plaza. AutoCAD Architectural Desktop © R3.3. 2002 ![]() Pole House remodel, floor 1. AutoCAD Architectural Desktop © R3.3. 2002 ![]() Pole House remodel, floor 2. AutoCAD Architectural Desktop © R3.3. 2002 This project was of a large home with only two usable bedrooms. We added several more bedrooms and also made the general plan more usable. ![]() The first of several play house drawings for Valerie Roberts - Interior Designer. AutoCAD© Architectural Desktop R2, 2001. In May and June, 2001, I filled in drafting for a vacationing employee for a month at TDM Architects, Inc. It was a short but rewarding experience. Drawings tended to be of a sensitive nature and can not be shown here. ![]() Assistance League of Southern California Design House, 2000. Drawing in AutoCAD© Architectural Desktop R2 for P. M. Designs. ![]() This is one of six sheets of a kitchen remodel for Interior Designer Nancy Lerner. AutoCAD ©, 2000 ![]() El Portal Theater remodel. Roof plan. For R. F. McCann and Company. ![]() I volunteer at three Los Angeles County Museums for which I make maps and other graphic. In the past, I edited one of the news letters using many computer skills. ![]() I volunteer at three Los Angeles County Museums for which I make maps and other graphic. In the past, I edited one of the news letters using many computer skills. |

|
|
|
|
|